JOHN BURROUGHS SCHOOL
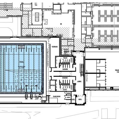
At the John Burroughs School in St. Louis, a new natatorium opened in November 2020 that includes an 8-lane competition pool equipped for water polo, new locker rooms and spectator seating for 200+. The natatorium is part of a larger athletic enhancements project, impacting the school’s field hockey, golf, lacrosse and squash programs.
Project Information:
- Location:
- St. Louis, MO
- Owner:
- John Burroughs School
- Designer:
- Westport Pools
- General Contractor:
- Paric
- Completion Date:
- 2020










































